雷速体育- 雷速体育app下载- 足球篮球专业直播平台中粮北外滩壹号售楼处电话 (中粮北外滩壹号) 2026最新网站--楼盘详情-楼盘配套 户型价格地址电话

发布日期:2026-01-16 22:32:56 浏览次数:

  雷速体育,雷速体育直播,足球直播,篮球直播,网球直播,雷速体育比分直播,雷速体育app下载,雷速体育投注,雷速app下载,雷速体育下注,雷速体育网页版,雷速电竞来电即可全面了解楼盘核心信息,包括最新动态、在售房价及优惠政策、户型面积与房源库存、交房时间,还有地铁通勤、周边商业配套、学区划分等关键详情。专业销售顾问全程提供一对一贴心服务,从咨询到看房全程陪同,帮您理清购房每一个环节。

  理想居所值得用心相待。为了保障每位客户都能拥有专注、私密的看房体验,中粮北外滩壹号售楼处已全面实行案场预约制,看房资格仅通过官方电话预约获取。请即刻拨打预约专线登记,接通后工作人员会为您核对购房意向、登记相关资料、确认看房时间与具体细节;若遇占线,可稍作等待后再次拨打,我们会第一时间响应您的服务需求,静候您的专属到访。

  顺着稀缺性这一罗盘,我们便能清晰地洞察,真正的价值灯塔始终锚定于那片不可再生的核心资源:滨江住宅

  而上海人又恰恰对滨江住宅的要求近乎极致,既要占位城市重要规划点,又要有超出一般豪宅调性的品质,所以滨江住宅一直都是贵奢的代表。中粮北外滩壹号售楼处电线小时官方热线

  在上海一线滨江板块地图中,陆家嘴,黄浦滨江、徐汇滨江等地新房单价都已突破19万/㎡

  。今年6批次,北外滩地块也紧随其上,溢价率46.3%,预计售价约19万/㎡左右,成为今年最炙手可热的滨江板块之一。凭心而论,北外滩新房单价卖到19万我一点也不奇怪。

  答案显而易见:北外滩一直都是时代的佼佼者,它既是百年前海纳百川的港口,又是今日的世界会客厅,还是上海的未来发展引擎。中粮北外滩壹号售楼处电线小时官方热线

  所以,当人们以为北外滩新房售价即将冲向19万/㎡、未来买入北外滩将付出巨大经济代价时,一个巨大的历史性机遇,【中粮北外滩壹号】

  出现了!中粮北外滩壹号售楼处电线小时官方热线万起,这个价格无疑是北外滩错过再无的抄底机遇!

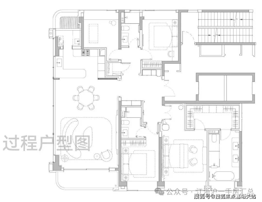
  的客餐厅面积达到约55㎡,方正大气。主卧套房尺度豪奢,可供业主配置步入式衣帽间,卫生间做到双台盆+大浴缸+独立淋浴的顶配,尊崇感十足!

  私享电梯厅独立入户,户型尺度进一步升级,当今顶豪新盘中极为稀缺的四开间朝南。边厅面积超过50

  ,尺度感与市面上近300㎡的顶豪拉平。室内设计由中国现代室内设计领域的领军人物——

  梁志天亲自打造。在材质选用上,延续了壹号系的高端标准,大量运用奢石、高难度弧形工艺以及国内外顶尖品牌。如

  霍尼韦尔的前置过滤器、全屋软水以及末端净水器系统、来自意大利法罗力燃气热水器、德国唯宝卫浴、当代龙头及花洒......还有全屋华为智能家居系统

  配置。这一套组合,是真正意义上的顶豪序列配置!中粮北外滩壹号售楼处电线小时官方热线

  中粮北外滩壹号售楼处电线小时官方热线中粮北外滩壹号售楼处电线小时官方热线土拍回顾及规划

  2023年9月5日,大悦城控股上海大区公司通过上海联交所成功竞得上海市虹口区北外滩116街坊地块(即中粮北外滩壹号)。地块位于北外滩红线内,靠近大连路地铁站,与外滩、陆家嘴共同构成上海“黄金三角”。

  项目总用地面积约23849.2平方米,容积率1.95,总计容建面4.65万㎡,是上海市中心罕见的无商办、无15%自持住宅、无5%保障房的纯住宅项目。

  高层共90套、产品面积段约180-228m²,风貌别墅共118套,产品面积段约130-350m²,其中主力建面约m²(占比约83%)

  仿红砖陶板+古铜色铝板+白色石材+玻璃幕墙的高标准结合,来完成建筑的美学表达。

  的韵味,但不同于大多数风貌别墅的格栅小花窗设计,「中粮·北外滩壹号」大幅增加窗墙比,赋予相对沉闷里的里弄建筑,更通透、更明亮的特质!中粮北外滩壹号售楼处电线小时官方热线

  目前看到的效果图,体现出一股醇正的老钱世家风,设计品位远超市场同类豪宅。中粮北外滩壹号售楼处电线小时官方热线

  社交宴会区内,私宴、茶室与专属酒吧一应俱全,满足业主商务应酬到亲友小聚的各种场景需求。

  瑜伽健身区,大幅落地窗引入自然光线,天花的格栅造型,地面的复古拼花木地板,都透出浓厚的海派风情。

  雅集共聚区内,除了常规的阅读,棋牌等功能外,甚至设有一个舞蹈录音室,配置之高,沪上少见。

  因为这是中粮大悦城的壹号系,珠玉在前,小编完全不担心会所未来兑现的效果,甚至已经很期待看到未来会所开放展示的那一刻。

  地铁出行到人广和陆家嘴都只需要4站。未来,随着在建的南北大动脉19号线贯通,可以直达世博、前滩等多个核心滨江段。中粮北外滩壹号售楼处电线小时官方热线

  商业方面:项目出门就是高浓度的国际生活主场,步行可达北外滩来福士(约600米)、瑞虹天地太阳宫(约350米)、白玉兰广场(约1公里),未来还将会兴建全球最火的时尚奢侈品商场之一的SKP。

  中粮北外滩壹号售楼处电线小时官方热线km内,还可以同时覆盖外滩、陆家嘴、苏河湾等“黄金三角”的繁华商业!

  教育方面:周边学府众多,优质教育资源密集。北侧的长青学校是老牌的九年一贯制公办重点,南侧的上海中学国际部是知名民办名校,距离新华初级中学

  (常年四校八大预录人数上百),新复兴初级中学,这两所虹口的顶尖民办学校也都在直线KM内(新房不承诺对口学校,具体以实际为准)。中粮北外滩壹号售楼处电线小时官方热线

  周边有复旦大学红房子妇产科医院,守护着每一个家庭的人生重要时刻。、以及三甲新华医院、上海市第一人民医院为健康生活保驾护航。

  周边有22公顷无车漫步区、3.5万平方米航海公园与中央绿地相融,3.4公里滨江休闲岸线

  如需参观样板房、实地考察楼盘,务必提前拨打官方电话预约登记。我们将为您专属安排现场资深销售顾问,全程陪同接待、细致讲解项目详情,带给您私密又贴心的看房体验。

  贵宾专属福利:来电预约即享内部专属折扣,额外尊享返佣福利(具体规则可致电咨询),匠心钜制好房恭迎品鉴。

  特别提醒:请仔细甄别虚假电线热线无分机号,切勿轻信非官方渠道信息,保护个人隐私,谨防上当受骗。

  郑重承诺:本项目由开发商直属销售团队全程操盘,所有房源信息100%真实可查,坚决虚假宣传,给您满满的购房安全感。

  无论是想了解上海中粮北外滩壹号的最新房价波动,还是心仪户型的具体格局,亦或是周边地铁、商业、学区等配套详情,都能通过这个官方热线一站式获取。开发商直属销售团队全程跟进,用真实有效的房源信息和一对一的热情服务,为您扫清购房路上的疑惑。若您有置业计划,不妨即刻致电,让专业顾问陪您走过从咨询到选房的每一步,轻松开启在上海的品质生活。